حراج العقار/شقق للبيع/شقق للبيع في جده/شقق للبيع في حي قباء في جده

شقة للبيع 5 غرف مخطط الموسى فيو

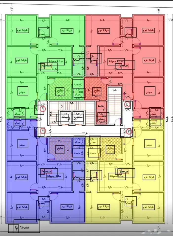
🔵شقة مخطط الموسى مساحه 162 م🔵 🔹الغرف 5 🔹صاله 1 🔹مطبخ 🔹دورات المياه 3 🔹غرفه غسيل 🔹مدخلين لشقه 🔹خزان مستقل علوي وسفلي 🔹عدد الشقق في الدور 4 🔹دخول ذكي 🔹موقف خاص 🔹المساحه : 162 م 🔹حديقة بجوار العمارة 🔹جامع بجوار العمارة 🔹الموقع جده مخطط الموسى فيو 🔴السعر قبل : 490,000 🔴السعر بعد : 470,000 ( الأسعار لفتره محدوده ) معلومات العقار حسب الرخصة نوع العقار : Apartment مساحة العقار : 160.91 رقم المخطط : 586 ج س خدمات العقار : Electricity عمر العقار : New عدد الغرف : 5 حدود وأطوال العقار وصف الحد الشمالي : إرتداد 1 ثم قطعة رقم 267 طول الحد الشمالي : 4.7 0.75 8.4 وصف الحد الشرقي : إرتداد 2 ثم قطعة رقم 271 طول الحد الشرقي : ثلاثة عشر متر و خمسة و تسعون سنتيمتر وصف الحد الغربي : الوحدة رقم 1 1 و منور 1 طول الحد الغربي : 2.1 1.75 1.3 1.75 7.9 وصف الحد الجنوبي : الوحدة رقم 3 1 و ممرات و مصعد 2 و درج طول الحد الجنوبي : 5.9 3.35 1.6 1.45 5.6 السعر : 470000 المدينة : Jeddah الحي : AlWisam صاحب الترخيص : احمد سعيد تاريخ انتهاء رخصة الإعلان : 2026-02-22 ----- نأمل مطابقة الموقع على الخريطة مع الموقع حسب الصك الضمانات و مدتها: لايوجد شاهد تفاصيل الاعلان في منصة ديل https://dealapp.sa/ar/ad-details/7100226640 رقم العارض 1100280189 رقم الترخيص 7100226640
شقة للبيع 5 غرف مخطط الموسى فيو 0شقة للبيع 5 غرف مخطط الموسى فيو 1شقة للبيع 5 غرف مخطط الموسى فيو 2شقة للبيع 5 غرف مخطط الموسى فيو 3شقة للبيع 5 غرف مخطط الموسى فيو 4شقة للبيع 5 غرف مخطط الموسى فيو 5شقة للبيع 5 غرف مخطط الموسى فيو 6شقة للبيع 5 غرف مخطط الموسى فيو 7شقة للبيع 5 غرف مخطط الموسى فيو 8شقة للبيع 5 غرف مخطط الموسى فيو 9شقة للبيع 5 غرف مخطط الموسى فيو 10شقة للبيع 5 غرف مخطط الموسى فيو 11