حراج العقار/فلل للبيع/فلل للبيع في الطايف/فلل للبيع في حي ج25 في الطايف

لبيع فلا مع شقه مسروقه وملحق صغير بسطح ضاحيه الاسكان الطايف

ج25قبل ١٠ ساعات
ع
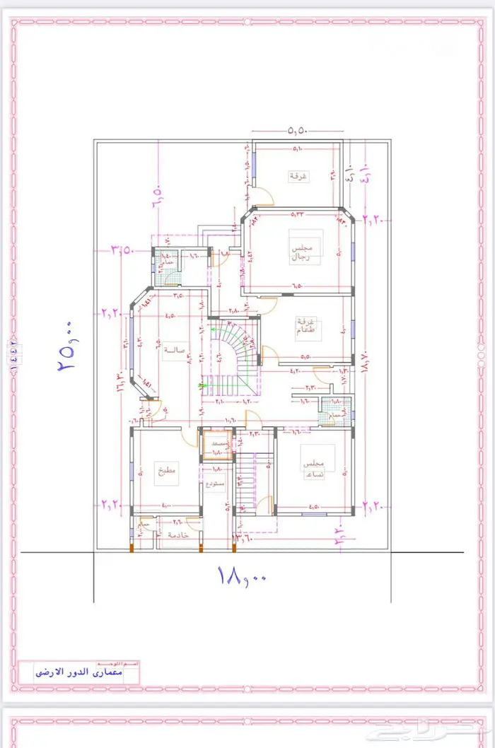
فيلا دبلوكس مع شقة بالملحق لها مدخل خاص الفيلا عظم بصك حر وعداد كهرباء 70 أمبير الواجهة / شارع شمالي 18م الموقع / إسكان ضاحية جليل مساحة الأرض /450م تتكون بالدور الأرضي من مجلس رجال ومقلط ودورة مياة وصالة جانبية ومجلس نساء ودورة مياة ومطبخ ومستودع وغرفة شغالة بدورة مياة ودرج داخلي مكشوف على الصالة مصعد مشب خارجي الدور الثاني / غرفة نوم ريئسية وغرفة ملابس ودورة مياة خاصة 3 غرف و دورتين مياة وغرفة غسيل وصالة جانبية الملحق / غرفة نوم خاصة بدورة مياة ومستودع وغرفة بدورة مياة ومطبخ ومستوع مفتوح على السقف مدخل خاص للنساء مدخل سيارة حوش أمامي في قسم الرجال الانشاء تحت إشراف مكتب هندسي معتمد الحد 670 الف تقبل البنك صاحب الترخيص : عبدالرحمن مناحي تاريخ انتهاء رخصة الإعلان : 2025-11-25 - نأمل مطابقة الموقع على الخريطة مع الموقع حسب الصك السعر. 670 الف شاهد تفاصيل الاعلان في منصة ديل معلومات العقار حسب الرخصة نوع العقار : دور استخدام العقار : سكني مساحة العقار : 450 رقم المخطط : 23192102 س المعدل خدمات العقار : كهرباء عمر العقار : جديد عدد الغرف : 6 حدود وأطوال العقار السعر : 750000 المدينة : امارة منطقة مكة المكرمة الطائف الحي : وادي جليل صاحب الترخيص : عبدالرحمن مناحي تاريخ انتهاء رخصة الإعلان : 2025-11-25 ----- نأمل مطابقة الموقع على الخريطة مع الموقع حسب الصك شاهد تفاصيل الاعلان في منصة ديل https://dealapp.sa/ar/ad-details/7100136613 رقم العارض 1100277284 رقم الترخيص 7100136613
لبيع فلا  مع شقه مسروقه وملحق صغير بسطح ضاحيه الاسكان الطايف 0لبيع فلا  مع شقه مسروقه وملحق صغير بسطح ضاحيه الاسكان الطايف 1لبيع فلا  مع شقه مسروقه وملحق صغير بسطح ضاحيه الاسكان الطايف 2لبيع فلا  مع شقه مسروقه وملحق صغير بسطح ضاحيه الاسكان الطايف 3