حراج العقار/اراضي للبيع في مكه/اراضي للبيع في حي البحيرات في مكه/اراضي للبيع

للبيع ارض تجارية ركنية شارعين مخطط الغدير مكة المكرمة

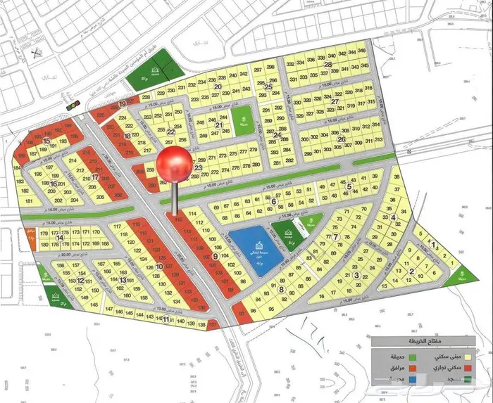
أرض تجارية ركنية على شارعين مخطط الغدير - مكة المكرمة شارع غربي عرض 35 متر شارع شمالي عرض 15 متر المساحة 1129 متر مربع سعر المتر 4500 ريال البيع صافي 5.083.335 ريال صاحب الترخيص : سلمان سليم طريس الصاعدي معلومات العقار حسب الرخصة نوع العقار : Land مساحة العقار : 1129.63 عرض الشارع : 35 رقم المخطط : ك ك 1 26 29 واجهة العقار : Northern Western خدمات العقار : Electricity, Waters, FixedPhone حدود وأطوال العقار نوع الحد الشمالي : شارع وصف الحد الشمالي : عرض 15م طول الحد الشمالي : سبعة وعشرون متر وخمسة وثمانون سنتيمتر خمسة متر وستة وستون سنتيمتر نوع الحد الشرقي : قطعة وصف الحد الشرقي : رقم 114 طول الحد الشرقي : و واحد و ثلاثون متر و عشر ون سنتيمتر نوع الحد الغربي : شارع وصف الحد الغربي : عرض 35م وتمام الحد محول كهربائي طول الحد الغربي : سبعة وثلاثون متر واثنين وسبعون سنتيمتر اثنين متر اثنين متر وخمسة وعشرون سنتيمتر نوع الحد الجنوبي : قطعة وصف الحد الجنوبي : رقم 113 طول الحد الجنوبي : ثمانية و عشر ون متر السعر : 5083335 صاحب الترخيص : سلمان سليم تاريخ انتهاء رخصة الإعلان : 2026-03-25 ----- نأمل مطابقة الموقع على الخريطة مع الموقع حسب الصك الضمانات و مدتها: لايوجد شاهد تفاصيل الاعلان في منصة ديل https://dealapp.sa/ar/ad-details/7100221707 وصف موقع العقار حسب الصك المدينة: مكه الحي: البحيرات عمولة نقل الملكية: لا يوجد رقم العارض 1100053618 رقم الترخيص 7100221707
للبيع ارض تجارية ركنية شارعين مخطط الغدير مكة المكرمة 0للبيع ارض تجارية ركنية شارعين مخطط الغدير مكة المكرمة 1للبيع ارض تجارية ركنية شارعين مخطط الغدير مكة المكرمة 2