حراج العقار/شقق للايجار/شقق للايجار في الرياض/شقق للايجار في حي النرجس في الرياض

شقة للايجار في كمباوند حي النرجس

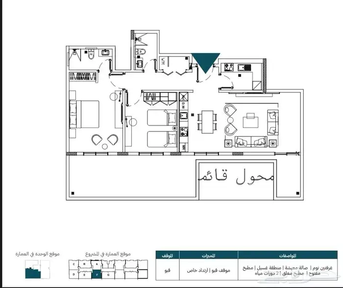
🏡 للإيجار – شقة في أريس كمباوند – حي النرجس • الدور الأرضي • غرفتين نوم (إحداها ماستر) • دورتين مياه • مطبخان (مفتوح + مغلق) • غرفة غسيل • صالة • ارتداد خلفي مطل على غرف النوم والصالة • دخول ذكي • مكيفات راكبة • موقف سيارة داخلي مرافق الكمباوند: • مسبح داخلي • نادي رياضي (رجالي / نسائي) • غرفة ساونا • حديقة • منطقة ألعاب أطفال • استقبال وأمن على مدار الساعة الإيجار: • بدون تركيب مطبخ: • دفعتين: 80,000 ريال • دفعة واحدة: 78,000 ريال • مع تركيب مطبخ: • دفعتين: 85,000 ريال • دفعة واحدة: 83,000 ريال ⸻ 🏡 For Rent – Apartment in Aris Compound – Al Narjis District • Ground Floor • 2 Bedrooms (one Master) • 2 Bathrooms • 2 Kitchens (Open + Closed) • Laundry Room • Living Room • Backyard overlooking bedrooms and living room • Smart Entry • Installed Air Conditioners • Indoor Parking Compound Facilities: • Indoor Swimming Pool • Gym (Male & Female) • Sauna Room • Garden • Kids’ Playground • 24/7 Reception & Security Rent Price: • Without Kitchen Installation: • Two Payments: 80,000 SAR • One Payment: 78,000 SAR • With Kitchen Installation: • Two Payments: 85,000 SAR • One Payment: 83,000 SAR معلومات العقار حسب الرخصة نوع العقار : Apartment مساحة العقار : 98.49 رقم المخطط : 3811 خدمات العقار : Electricity, Waters, Sanitation عمر العقار : New عدد الغرف : 2 حدود وأطوال العقار صاحب الترخيص : ساره راجح تاريخ انتهاء رخصة الإعلان : 2026-06-26 ----- نأمل مطابقة الموقع على الخريطة مع الموقع حسب الصك شاهد تفاصيل الاعلان في منصة ديل https://dealapp.sa/ar/ad-details/7100221069 رقم العارض 1100046508 رقم الترخيص 7100221069
شقة للايجار في كمباوند حي النرجس 0شقة للايجار في كمباوند حي النرجس 1شقة للايجار في كمباوند حي النرجس 2شقة للايجار في كمباوند حي النرجس 3شقة للايجار في كمباوند حي النرجس 4شقة للايجار في كمباوند حي النرجس 5شقة للايجار في كمباوند حي النرجس 6