حراج العقار/اراضي للبيع في مكه/اراضي للبيع في حي العوالي في مكه/اراضي للبيع

قطعة ارض بالحسينية مخطط الصالحية

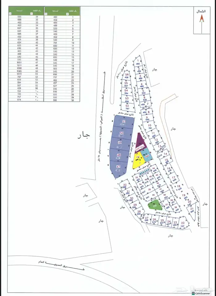
ارض سكنية بحي الحسينية مخطط الصالحية قطعه رقم 26 صكوك الكترونية وافراغ فوري مخطط جديد ومنفذ فيه جميع الخدمات والبنية التحتية (ازفلت - كهرباء - انارة) ومرافق (حديقه - مسجد - روضه - مستوصف) يتميز موقع المخطط بقربه من الجامعة وحي العوالي (مخطط الصالحية) 780 الف صافي للتواصل : ( رقم الجوال يظهر عند الضغط على زر تواصل ) ( رقم الجوال يظهر عند الضغط على زر تواصل ) صاحب الترخيص : مؤسسة صالح وصل السلمي العقارية صاحب الترخيص : مؤسسة صالح وصل السلمي العقارية معلومات العقار حسب الرخصة نوع العقار : ارض مساحة العقار : 516.39 عرض الشارع : 15 رقم المخطط : ك ك1 32 61 واجهة العقار : شمالية خدمات العقار : كهرباء, مياه, صرف صحي, هاتف, ألياف ضوئية, تصريف الفيضانات حدود وأطوال العقار السعر : 780781.68 صاحب الترخيص : مؤسسة صالح وصل السلمي العقارية تاريخ انتهاء رخصة الإعلان : 2026-09-29 ----- نأمل مطابقة الموقع على الخريطة مع الموقع حسب الصك الضمانات و مدتها: لايوجد شاهد تفاصيل الاعلان في منصة ديل https://dealapp.sa/ar/ad-details/7200697722 وصف موقع العقار حسب الصك المدينة: مكه الحي: العوالي عمولة نقل الملكية: لا يوجد رقم العارض 1200017264 رقم الترخيص 7200697722
قطعة ارض بالحسينية مخطط الصالحية 0قطعة ارض بالحسينية مخطط الصالحية 1قطعة ارض بالحسينية مخطط الصالحية 2قطعة ارض بالحسينية مخطط الصالحية 3قطعة ارض بالحسينية مخطط الصالحية 4