محلات للايجار في حي صلاح الدين الشرقي في حائل/محلات للايجار في حائل/محلات للايجار/حراج العقار

حائل- حي صلاح الدين - شارع الملك فيصل

صلاح الدين الشرقي
تحديث الأسبوع الماضي
أ
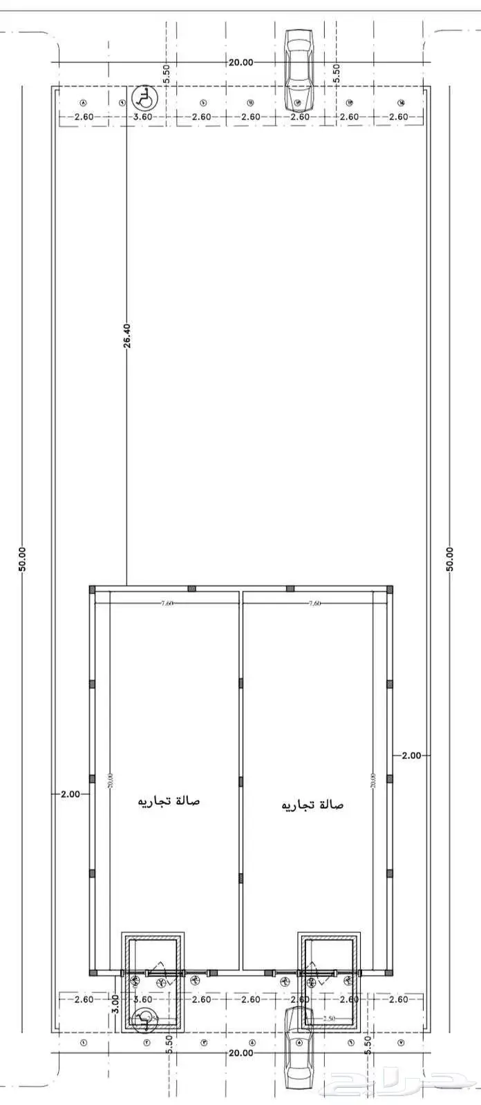
📢 معارض تجارية للإيجار – موقع استراتيجي في قلب حائل ✨ فرصة ذهبية للاستثمار - معرضين تجاريين متجاورين، مع إمكانية استئجار أحدهما أو كليهما، بمواصفات راقية تناسب مختلف الأنشطة. المواصفات: المساحة: كل معرض 160 م2 تقريبًا حرية التشطيب واختيار المواد حيث ان المبنى عظم ومبني حسب أعلى المواصفات وبارتفاع 7 متر تقريباً. الاستخدام: مثالية لمختلف الأنشطة (صيدليات – عيادات – مكاتب – كافيهات – محلات تجزئة – وغيرها) مواقف سيارات كافية ومريحة للعملاء رصيف خاص بعرض 3 متر، مناسب للعرض أو الجلسات الخارجية الموقع المميز: الموقع في اهم شريان بحائل حيث ارتفاعات المباني اكثر من 5 ادوار في شارع الملك فيصل. وسط حائل. 2 دقائق من الدائري. قريب جدًا من جميع الخدمات على مقربة من الممشى الجديد الذي سيُفتتح قريبًا ويُتوقع أن يجذب عددًا كبيرًا من الزوار معلومات العقار (حسب الرخصة): نوع العقار: Exhibition المساحة الإجمالية للارض : 1000 م2 واجهة العقار: شمالية الخدمات: كهرباء – مياه – صرف صحي عمر العقار: جديد وحسب كود البناء السعودي ووجود ضمان تأمين 10 سنوات على العناصر الانشائية. حدود وأطوال العقار: الحد الشمالي: شارع – الطول 20 م الحد الشرقي: قطعة – الطول 50م الحد الغربي: قطعة – الطول 50 م الحد الجنوبي: شارع – الطول 20م يرجى التواصل على الواتس اب في حال عدم الرد معلومات العقار حسب الرخصة مساحة العقار : 1000 عرض الشارع : 25 رقم المخطط : 513 واجهة العقار : شمالية خدمات العقار : كهرباء, مياه, صرف صحي, هاتف, ألياف ضوئية عمر العقار : جديد حدود وأطوال العقار صاحب الترخيص : ممدوح أحمد تاريخ انتهاء رخصة الإعلان : 2026-02-04 ----- نأمل مطابقة الموقع على الخريطة مع الموقع حسب الصك الضمانات و مدتها: لايوجد شاهد تفاصيل الاعلان في منصة ديل https://dealapp.sa/ar/ad-details/7100215299 وصف موقع العقار حسب الصك المدينة: حائل الحي: صلاح الدين الشرقي عمولة نقل الملكية: لا يوجد رقم العارض 1100279044 رقم الترخيص 7100215299
حائل- حي صلاح الدين - شارع الملك فيصل 0حائل- حي صلاح الدين - شارع الملك فيصل 1حائل- حي صلاح الدين - شارع الملك فيصل 2