حراج العقار/اراضي للبيع في بلجرشي/اراضي للبيع

ارض للبيع قذانة ( العبير ) بلجرشي

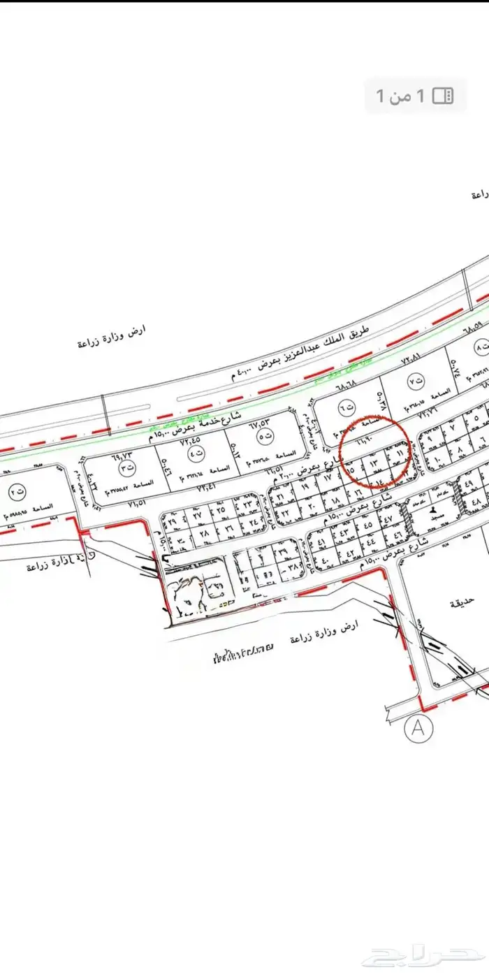
ارض للبيع رقم 13 في مخطط قذانة (العبير مخطط 638) مساحتها 500 متر مربع على شارع عشرين موقعها مميز وقريبة من الشارع العام طبيعتها جيدة لاتحتاج إلا لتعديل بسيط صك إلكتروني حد / 320000 ريال من المالك مباشرة للتواصل: ( رقم الجوال يظهر عند الضغط على زر تواصل ) معلومات العقار حسب الرخصة نوع العقار : ارض مساحة العقار : 500.02 عرض الشارع : 20 رقم المخطط : 2668 واجهة العقار : شمالية خدمات العقار : كهرباء الالتزامات الآخرى على العقار : none حدود وأطوال العقار نوع الحد الشمالي : شارع وصف الحد الشمالي : بعرض 20م طول الحد الشمالي : خمسة و عشرون متر نوع الحد الشرقي : قطعة وصف الحد الشرقي : رقم 11 طول الحد الشرقي : عشرون متر و أربعة سنتمتر نوع الحد الغربي : قطعة وصف الحد الغربي : رقم 15 طول الحد الغربي : عشرون متر و أربعة سنتمتر نوع الحد الجنوبي : قطعة وصف الحد الجنوبي : رقم 14 طول الحد الجنوبي : أربعة و عشرون متر و ثمانية و ثمانون سنتمتر السعر : على السوم صاحب الترخيص : شركة تطبيق ديل العقارية معلومات العقار حسب الرخصة نوع العقار : ارض مساحة العقار : 500.02 عرض الشارع : 20 رقم المخطط : 2668 واجهة العقار : شمالية خدمات العقار : كهرباء الالتزامات الآخرى على العقار : none حدود وأطوال العقار نوع الحد الشمالي : شارع وصف الحد الشمالي : بعرض 20م طول الحد الشمالي : خمسة و عشرون متر نوع الحد الشرقي : قطعة وصف الحد الشرقي : رقم 11 طول الحد الشرقي : عشرون متر و أربعة سنتمتر نوع الحد الغربي : قطعة وصف الحد الغربي : رقم 15 طول الحد الغربي : عشرون متر و أربعة سنتمتر نوع الحد الجنوبي : قطعة وصف الحد الجنوبي : رقم 14 طول الحد الجنوبي : أربعة و عشرون متر و ثمانية و ثمانون سنتمتر السعر : على السوم صاحب الترخيص : شركة تطبيق ديل العقارية تاريخ انتهاء رخصة الإعلان : 2026-09-17 - نأمل مطابقة الموقع على الخريطة مع الموقع حسب الصك شاهد تفاصيل الاعلان في منصة ديل معلومات العقار حسب الرخصة نوع العقار : ارض مساحة العقار : 500.02 عرض الشارع : 20 رقم المخطط : 2668 واجهة العقار : شمالية خدمات العقار : كهرباء الالتزامات الآخرى على العقار : none حدود وأطوال العقار نوع الحد الشمالي : شارع وصف الحد الشمالي : بعرض 20م طول الحد الشمالي : خمسة و عشرون متر نوع الحد الشرقي : قطعة وصف الحد الشرقي : رقم 11 طول الحد الشرقي : عشرون متر و أربعة سنتمتر نوع الحد الغربي : قطعة وصف الحد الغربي : رقم 15 طول الحد الغربي : عشرون متر و أربعة سنتمتر نوع الحد الجنوبي : قطعة وصف الحد الجنوبي : رقم 14 طول الحد الجنوبي : أربعة و عشرون متر و ثمانية و ثمانون سنتمتر السعر : 350000 صاحب الترخيص : شركة تطبيق ديل العقارية تاريخ انتهاء رخصة الإعلان : 2026-09-17 ----- نأمل مطابقة الموقع على الخريطة مع الموقع حسب الصك الضمانات و مدتها: لايوجد شاهد تفاصيل الاعلان في منصة ديل https://dealapp.sa/ar/ad-details/7200683455 وصف موقع العقار حسب الصك المدينة: بلجرشي عمولة نقل الملكية: لا يوجد رقم العارض 1200006871 رقم الترخيص 7200683455
ارض للبيع قذانة ( العبير ) بلجرشي 0